#MS23 | Moderne DHH links
- 450.000 €Kaufpreis
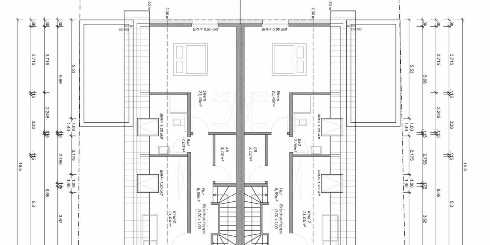
- 4Zi.
- 143 m²Wohnfläche ca.
- 294 m²Grundstück ca.
- Stufenloser Zugang
- Gäste-WC
- Garten/-mitbenutzung
- Balkon/Terasse
Objektbeschreibung
Bei diesem Projekt handelt es sich um zwei Doppelhaushälften ohne Kellergeschoss. Dieses ansprechende Projekt, dass durch eine gehobene Ausstattung besticht und eine repräsentative Außendarstellung abgibt, wird bis zum Sommer 2022 fertiggestellt. Das Projekt wird bezugsfertig übergeben!
- Wohnfläche 143 m² (4-5 Zimmer)
- Abstellraum in der Wohnung
- 1x Garage zzgl. 2 weiteren Stellplätzen inklusive
- Terrasse inkl. eigener Garten
Ausstattung
Das Objekt erhält eine moderne Ausstattung im Innen- und Außenbereich.
- Fassade mit strukturierten Silikonharz Spachtelputz
- Fenster in Dreifachverglasung (außen anthrazit – innen weiß) sowie elektrische Rollläden
- Wärmepumpe, Fußbodenheizung, Armaturen der Fa. Grohe, Badewanne und Dusche im Bad
- Videosprechanlage, Netzwerkanschlüsse, Schaltermaterial: GIRA Standard weiß
- Decken- und Wandflächen: Raufasertapete + Anstrich weiß
- moderne Innentüren
- Feinsteinzeug Bodenfliesen in allen Räumen sowie Wandfliesen Bad/WC
Info:
Sonderwünsche sind in einem gewissen Rahmen gegen Aufpreis möglich!
Lage
Dieses ansprechende und repräsentative Projekt befindet sich in einer ruhigen und beliebten Lage in Hamm Bockum-Hövel.
Sie haben sämtliche Einkaufsmöglichkeiten, Ärzte, Restaurants, Schulen/Kita etc. in Ihrer unmittelbaren Umgebung sowie eine gute Anbindung zur Autobahn und die naheliegenden Nachbarstädte Bergkamen, Kamen, Werne, Lünen und Dortmund.
Sonstiges
Sie können diese Immobilie provisionsfrei vom Eigentümer erwerben!
Gerne können Sie uns auch Ihr individuelles Angebot unterbreiten.
Sie haben Kaufinteresse und eine objektbezogene Finanzierungsbestätigung vorliegen ?
Dann melden Sie sich bei uns und wir reservieren Ihnen die entsprechende Immobilie.
Des Weiteren führen wir daraufhin detaillierte Gespräche über mögliche Sonderwünsche auf Grundlage unserer Bau- und Leistungsbeschreibung.
